Eengezinswoning - Te koop

€ 497.783
Torenhofstraat 18A, 3370 Boutersem
3 150 m² 1

Omschrijving

Uitstekend gelegen perceel bouwgrond met nieuw te bouwen driegevelwoning.
Het perceel is landelijk gelegen en heeft een zuidwestelijke oriëntatie (achtergevel).
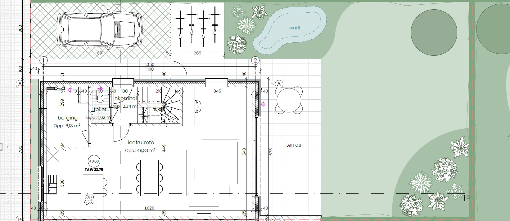
De woning heeft een gevelbreedte van 7m en een diepte van 11m.
De totale oppervlakte bedraagt 7are85ca. Achteraan heeft u een prachtig uitgestrekt zicht over de velden.
Prijs van de woning sleutel op de deur (incl. keuken, badkamer, architect, EPB, warmtepomp, zonnepanelen, vloerverwarming, terras. E-peil <20) voor 338.783 euro (excl. 21 % BTW) - plannen in bijlage. De zolder is reeds te bereiken met een vast trap.
Afwerking, indeling e.d. is nog te bespreken met de koper.

Contacteer ons gerust om een afspraak te maken om uw project te bespreken op kantoor.

Lees meer

Financieel

  • Prijs: € 497.783,00
  • Onder BTW stelsel: Ja
  • Beschikbaarheid: Bij oplevering
  • Servitude: Nee

Terrein

  • Grondoppervlakte: 785,00 m²
  • Terreindiepte: 75,99 m
  • Breedte aan straatkant: 10,33 m
  • Tuin: Ja (500,00 m²)

Stedenbouw

  • Bestemming: Woongebied
  • Bouwvergunning: Nee
  • Verkavelingsvergunning: Ja
  • Voorkooprecht: Nee
  • Dagvaarding: Nee - geen rechterlijke herstelmaatregel of bestuurlijke maatregel opgelegd
  • O-peil: Niet gelegen in een overstromingsgevoelig gebied
  • G-score: A
  • Watergevoelig openruimtegebied: Nee
  • Vonnissen: Nee

Ligging

  • Buurt: Vrij zicht

Comfort

  • Handicapvriendelijk: Nee
  • Lift: Nee

Technieken

  • Elektriciteit: Ja
  • Telefoonbekabeling: Ja

Energie

  • EPC klasse: A
  • Dubbele beglazing: Ja
  • Ramen: Aluminium
  • Type verwarming: Warmtepomp
  • Regenwaterput: Ja

Gebouw

  • Bewoonbare oppervlakte: 150,00 m²
  • Aantal gevels: 3
  • Bouwjaar: 2026
  • Staat: Uitstekend
  • Aantal verdiepingen: 2
  • Gevelbreedte: 7,00 m

Indeling

  • Keuken: Ja
  • Badkamer type: Alle comfort
  • Toiletten: 2
  • Terras: 21,00 m²
  • Wasplaats: Ja
  • Zolder: Ja

Parking

  • Garage: 0
  • Parkings buiten: 2
  • Parkings binnen: 0

Meer info over deze eigendom

Bedankt voor je bericht, we contacteren je zo spoedig mogelijk.
Er was een probleem bij het versturen van het formulier, gelieve opnieuw te proberen.


Jouw woning ook verkopen/verhuren? Contacteer ons