Nieuwbouw woning - Te koop
€ 498.600
Torenhofstraat 18A, 3370 Boutersem
Omschrijving
Uitstekend gelegen perceel bouwgrond voor het bouwen van een driegevelwoning.
Het perceel is landelijk gelegen en heeft een zuidwestelijke oriëntatie (achtergevel).
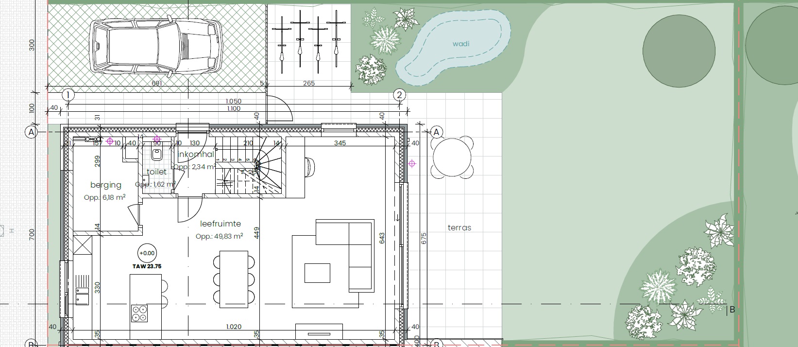
Er kan een woning gebouwd worden met een gevelbreedte van 7,33m en een diepte van 15m.
De totale oppervlakte bedraagt 7are85ca. Achteraan heeft u een prachtig uitgestrekt zicht over de velden.
Ook mogelijk een woning te laten bouwen sleutel op de deur voor 338.783 euro (excl. 21 % BTW) - plannen in bijlage
Contacteer ons gerust om een afspraak te maken om uw project te bespreken op kantoor.
Delen op
Financieel
- Prijs: € 498.600,00
- Beschikbaarheid: Vanaf akte
- Servitude: Nee
Terrein
- Grondoppervlakte: 785,00 m²
- Terreindiepte: 75,99 m
Stedenbouw
- Bestemming: Woongebied
- Bouwvergunning: Nee
- Verkavelingsvergunning: Ja
- Voorkooprecht: Nee
- Dagvaarding: Nee - geen rechterlijke herstelmaatregel of bestuurlijke maatregel opgelegd
- O-peil: Niet gelegen in een overstromingsgevoelig gebied
- G-score: A
- Watergevoelig openruimtegebied: Nee
- Vonnissen: Nee
Ligging
- Buurt: Vrij zicht
Technieken
- Elektriciteit: Ja
Gebouw
- Staat: Uitstekend